Y 098 |
|
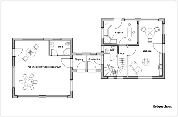
| Raumgrössen in qm: |
|
| EG | |
| Wohnen | 27,3 |
| Kochen | 13,0 |
| WC1 | 1,7 |
| Flur | 9,8 |
| Garderobe | 3,4 |
| Eingang | 3,2 |
| Arbeiten | 45,6 |
| WC2 | 5,1 |
| DG | |
| Schlafen | 17,9 |
| Bad | 7,9 |
| Kind/Gast | 13,5 |
| Empore | 5,7 |
| gesamt | 154,1 |
Y 098 |
|
| Raumgrössen in qm: |
|
| EG | |
| Wohnen | 27,3 |
| Kochen | 13,0 |
| WC1 | 1,7 |
| Flur | 9,8 |
| Garderobe | 3,4 |
| Eingang | 3,2 |
| Arbeiten | 45,6 |
| WC2 | 5,1 |
| DG | |
| Schlafen | 17,9 |
| Bad | 7,9 |
| Kind/Gast | 13,5 |
| Empore | 5,7 |
| gesamt | 154,1 |

