Y 130 |
|
| Raumgrössen in qm: |
|
| EG | |
| Wohnen | 33,1 |
| Kochen | 14,6 |
| Flur | 12,1 |
| HWR | 1,8 |
| WC | 1,6 |
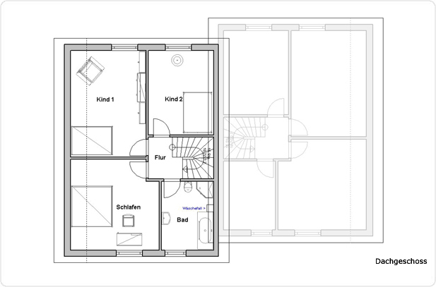
| DG | |
| Kind 1 | 18,7 |
| Kind 2 | 12,5 |
| Schlafen | 18,0 |
| Bad | 8,2 |
| Flur | 2,7 |
| KG | |
| Keller 1 | 18,4 |
| Keller 2 | 15,7 |
| Keller 3 | 10,0 |
| Technik | 12,1 |
| Flur | 6,0 |
| gesamt | 185,3 |
Y 130 |
|
| Raumgrössen in qm: |
|
| EG | |
| Wohnen | 33,1 |
| Kochen | 14,6 |
| Flur | 12,1 |
| HWR | 1,8 |
| WC | 1,6 |
| DG | |
| Kind 1 | 18,7 |
| Kind 2 | 12,5 |
| Schlafen | 18,0 |
| Bad | 8,2 |
| Flur | 2,7 |
| KG | |
| Keller 1 | 18,4 |
| Keller 2 | 15,7 |
| Keller 3 | 10,0 |
| Technik | 12,1 |
| Flur | 6,0 |
| gesamt | 185,3 |

