Y 136
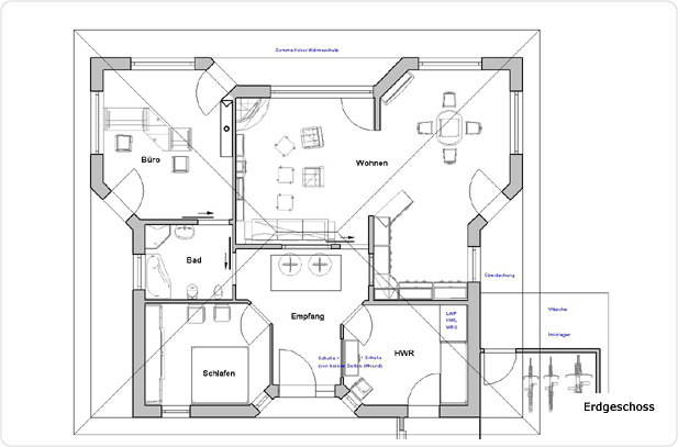
Raumgrössen in qm:
EG
Wohnen
58,5
Kochen
22,0
Bad
8,2
Schlafen
15,3
Empfang
16,4
HWR
15,0
gesamt
135,4