Y 206 |
|
| Raumgrössen in qm: |
|
| EG | |
| Wohnen | 54,8 |
| Garderobe | 7,8 |
| Speisen | 2,4 |
| Diele | 5,0 |
| WC | 2,0 |
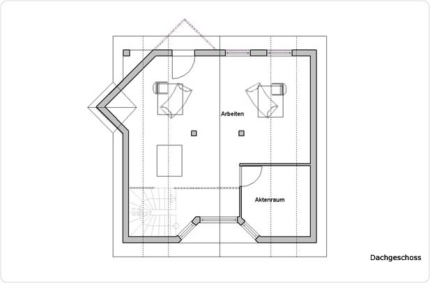
| DG | |
| Arbeiten | 44,3 |
| Aktenraum | 6,9 |
| KG | |
| Schlafen | 18,5 |
| Keller | 22,7 |
| Bad | 7,7 |
| HWR | 11,8 |
| Flur | 18,8 |
| gesamt | 202,7 |
Y 206 |
|
| Raumgrössen in qm: |
|
| EG | |
| Wohnen | 54,8 |
| Garderobe | 7,8 |
| Speisen | 2,4 |
| Diele | 5,0 |
| WC | 2,0 |
| DG | |
| Arbeiten | 44,3 |
| Aktenraum | 6,9 |
| KG | |
| Schlafen | 18,5 |
| Keller | 22,7 |
| Bad | 7,7 |
| HWR | 11,8 |
| Flur | 18,8 |
| gesamt | 202,7 |

