Y 222 |
|
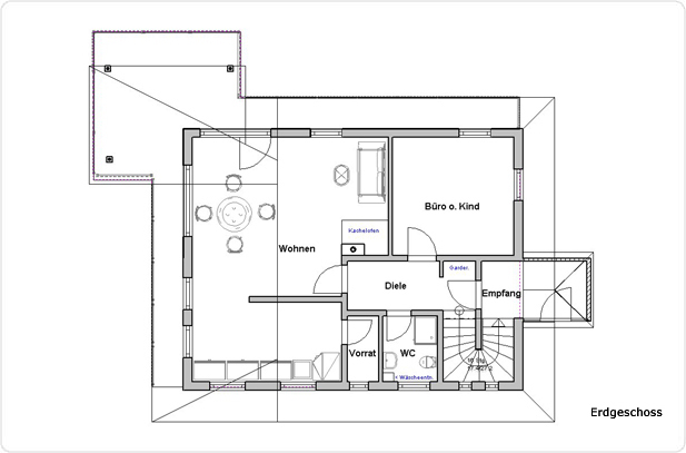
| Raumgrössen in qm: |
|
| EG | |
| Wohnen | 41,3 |
| Büro/Kind | 14,4 |
| Empfang | 6,9 |
| Vorrat | 2,0 |
| Diele | 10,7 |
| WC | 3,6 |
| DG | |
| Schlafen | 15,3 |
| Büro/Kind | 8,0 |
| Flur | 8,4 |
| Bad | 11,5 |
| Wellness | 4,9 |
| KG | |
| Gast1 | 20,3 |
| Kochen | 8,4 |
| Baden | 7,5 |
| Keller 1 | 10,8 |
| Flur | 9,9 |
| Flur 1 | 8,4 |
| gesamt | 222,1 |













